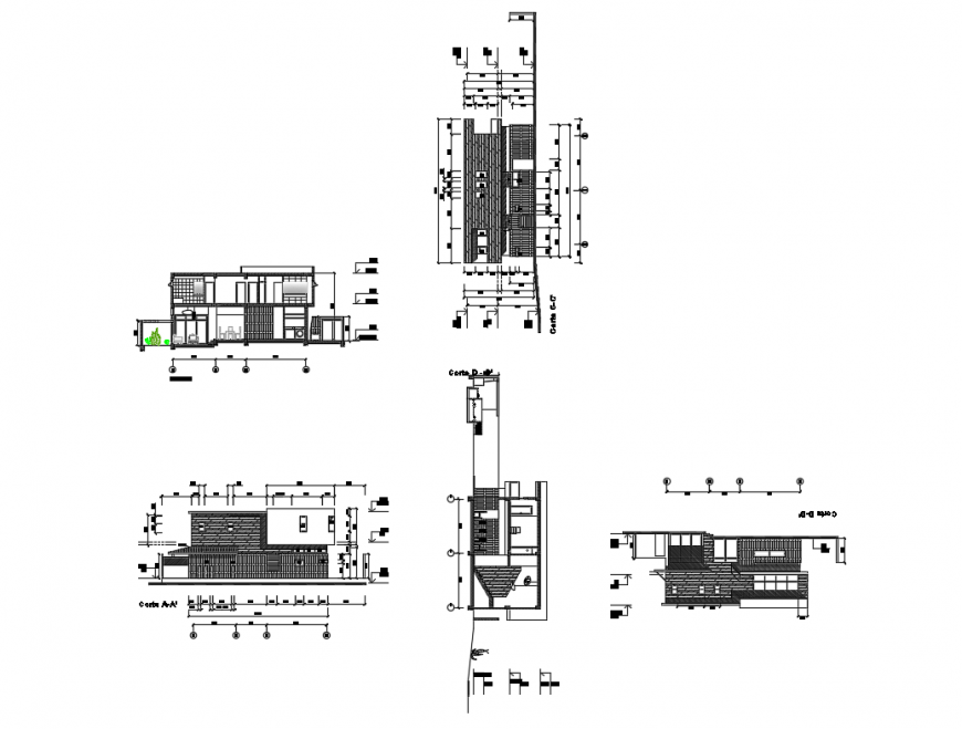
Golf club house all sided elevation and sectional details dwg file
Description
Golf club house all sided elevation and sectional details that includes a detailed view of facade and back elevations and sectional details with flooring view, doors and windows view, staircase view, balcony view, wall design, dimensions, roof or terrace view, car parking view and much more of club house details.
Uploaded by:
Eiz
Luna

