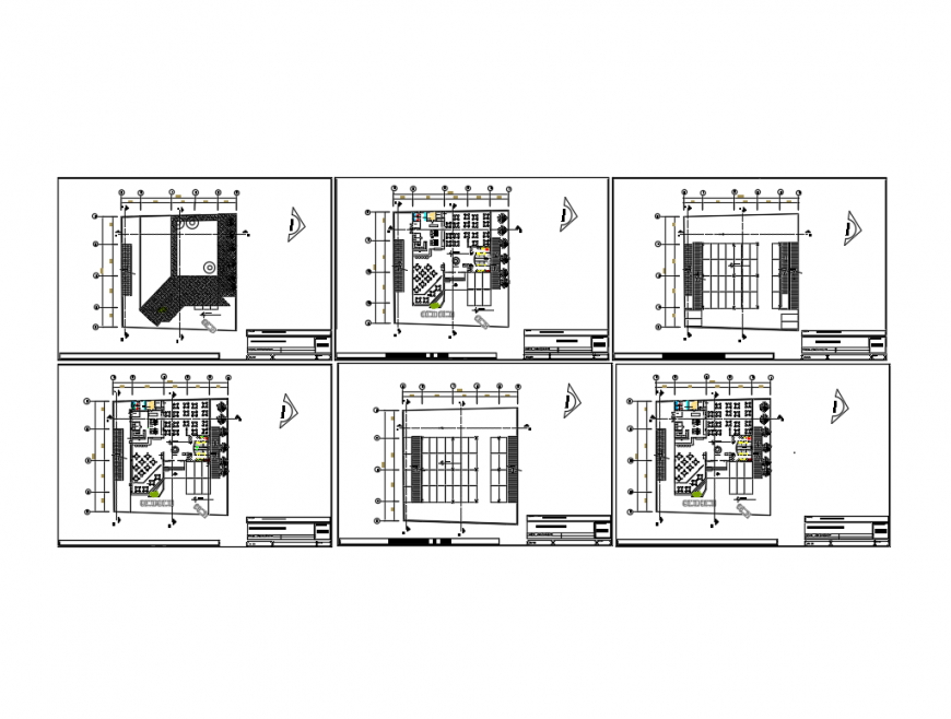
Ground, first and top floor layout plan details of restaurant with bar cad drawing details dwg file
Description
Ground, first and top floor layout plan details of restaurant with bar cad drawing details that includes a detailed view of reception area, waiting lounge, dining area, banquaet hall, kitchen, cleaning department, staff room, sanitary facilities, furniture details, interior details, bar counter details, bar lounge and much more of restaurant project.
Uploaded by:
Eiz
Luna

