Bank Office Project With DWG File
Description
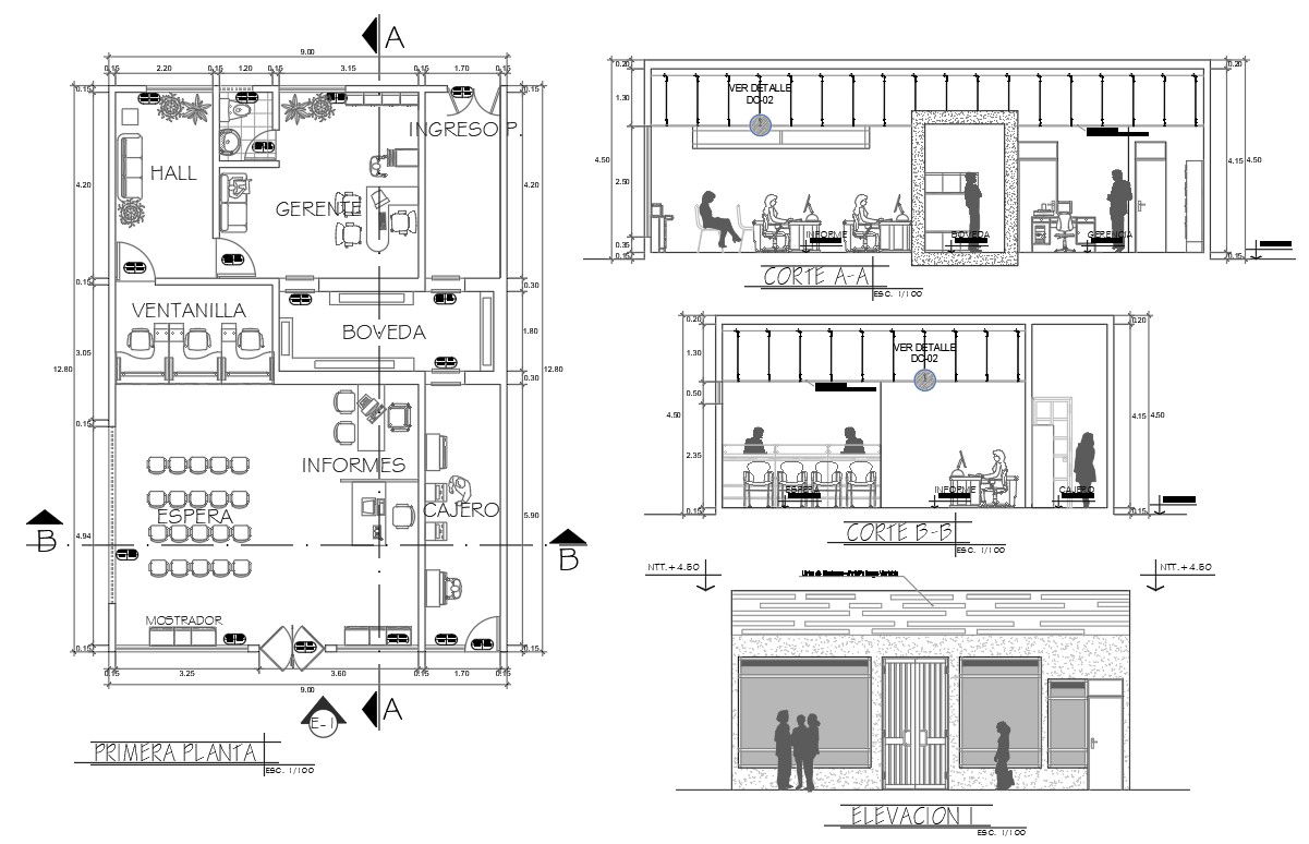
Bank Office Project With DWG File.This Shows First Floor Plan include Waiting Area,Reports Cabin,manager cabin,Window cabin and Dimension Detail with Front Elevation and Two Side Section For Download The Now..
Uploaded by:
helly
panchal

