Office building structure detail 2d view layout plan file in dwg format
Description
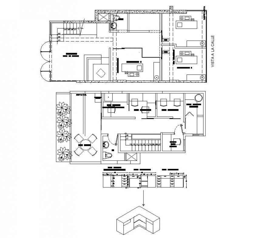
Office building structure detail 2d view layout plan file in dwg format, plan view detail, hidden line detail, furniture detail, rooms and cabins detail, floor level detail, sanitary toilet and wash-basin detail, staircase detail, riser and thread detail, RCC structure, table and chair detail, room dimension detail, door and window detail, not to scale drawing, vent detail, specification detail, etc.
Uploaded by:
Eiz
Luna

