Corporate Bank Design

Corporate Bank Design
Profile

Uploaded by:

Priyanka

Patel

Description
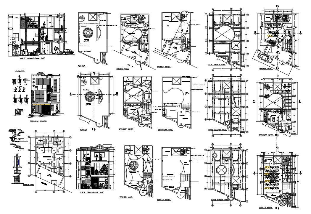
Corporate Bank Design Detail file, Detailing and design of ground floor plan, first floor plan, section 1 & 2 and elevation of bank project. Corporate Bank Design DWG File
Profile

Uploaded by:

Priyanka

Patel

find Latest

Related Files