LOGIN
HOME
CATEGORIES
UPLOAD FILE
PRICING
HOUSE PLAN
ABOUT US
CONTACT US
College project
Home
Categories
Architecture
Collage Drawing
College project
Uploaded by:
helly
panchal
View Profile
View Profile
Description
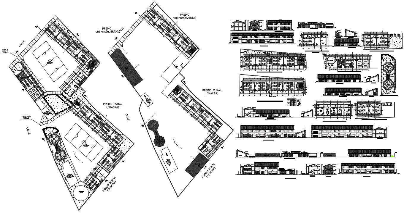
College project details in a layout plan, elevation design, class room, toilets, Teacher's room, sport ground, College project design draw in autocad format.
File Type:
Autocad
File Size:
3.1 MB
Category::
Architecture
Sub Category::
Collage Drawing
type:
Free
Uploaded by:
helly
panchal
View Profile
Download
Add to libary
find Latest
Related
Files