Gym plan detail elevation layout file
Description
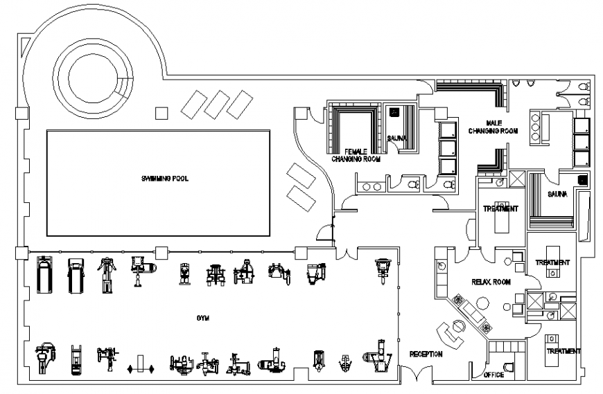
Gym plan detail elevation layout file, plan view detail, furniture detail, equipment detail, door and window detail, reception office detail, changing room detail, etc.
Uploaded by:
Eiz
Luna
Gym plan detail elevation layout file, plan view detail, furniture detail, equipment detail, door and window detail, reception office detail, changing room detail, etc.
Uploaded by:
Luna