Bank Building In DWG File

Bank Building In DWG File
Profile

Uploaded by:

helly

panchal

Description
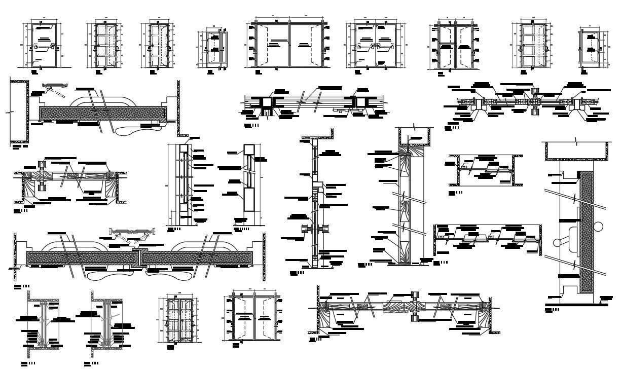
Bank Building In DWG File which shows the front elevation of the bank, It also includes different sections bank, parking, window details, door details with dimensions.
Profile

Uploaded by:

helly

panchal

find Latest

Related Files

WhatsApp Chat