Sliding wooden window installation structure detail dwg file
Description
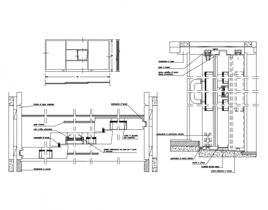
Sliding wooden window installation structure detail that includes a detailed view of Wooden counterframe, Fixed frame made of extruded aluminum alloy profiles, Movable frame made of extruded aluminum alloy profiles, Double glazing, Central stop, Internal floor in folded insulated aluminum, Roller shutter guide in aluminum, Insulated folded aluminum shoulders, External sill in insulated, folded aluminum and much more of expansion joints details.
Uploaded by:
Eiz
Luna

