Location and installation details of metal floating island structure details dwg file
Description
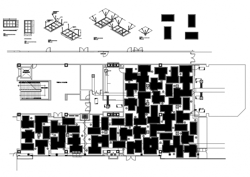
Location and installation details of metal floating island structure details that includes a detailed view of Plate 50mm wide x 100mm long x 3mm thick angled at 45 degrees and with 9.5mm perforations. Use HILTI HVA anchors of 9.5mm (3/8 ") diameter, angles of 50x6mm (2" x1 / 4 ") and threaded rod of 12.7mm (1/2") with nuts on top and bottom edge of the angles to use hilty hva anchoring system, atorroscante screw bit # 8 x 1/2 "for union between furring channel and 1 1/2" tube, infinity razor 6 "perimeter edge, plant, description: longitudinal metal sky detail, scale: , dimension: meters and much more of structure details.
Uploaded by:
Eiz
Luna

