House cad plan drawing

House cad plan drawing
Profile

Uploaded by:

Poonam

Description
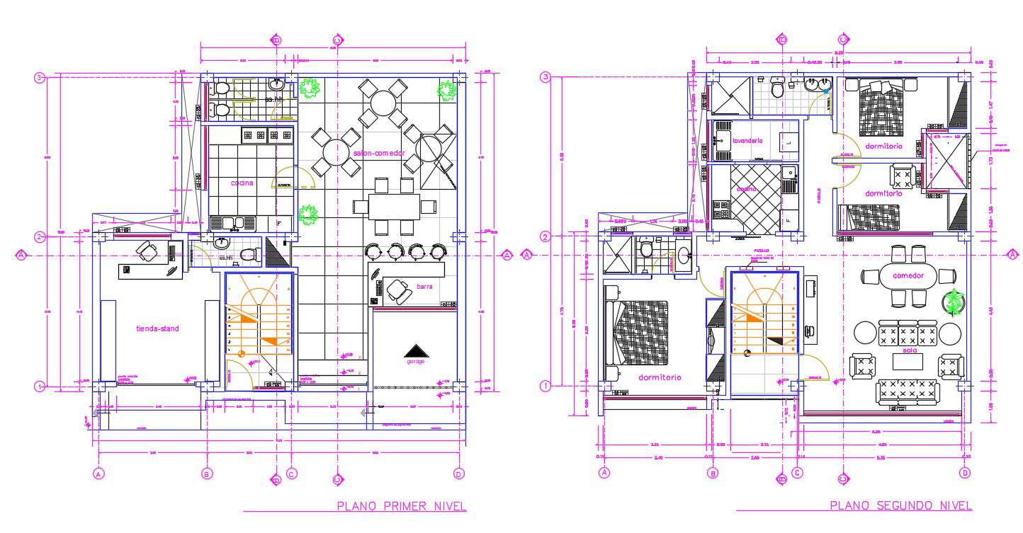
Bedroom floor cad plan includes wash room, bedroom, TV area, dinning hall, kitchen area. The first floor consists of three bedroom, sofa set, dinning hall. Hidden dimensions are also given.
Profile

Uploaded by:

Poonam

find Latest

Related Files

WhatsApp Chat