LOGIN
HOME
CATEGORIES
UPLOAD FILE
PRICING
HOUSE PLAN
ABOUT US
CONTACT US
Shop And Office Building Cad Plan
Home
Categories
Architecture
Corporate Building
Shop And Office Building Cad Plan
Uploaded by:
Komal
View Profile
View Profile
Description
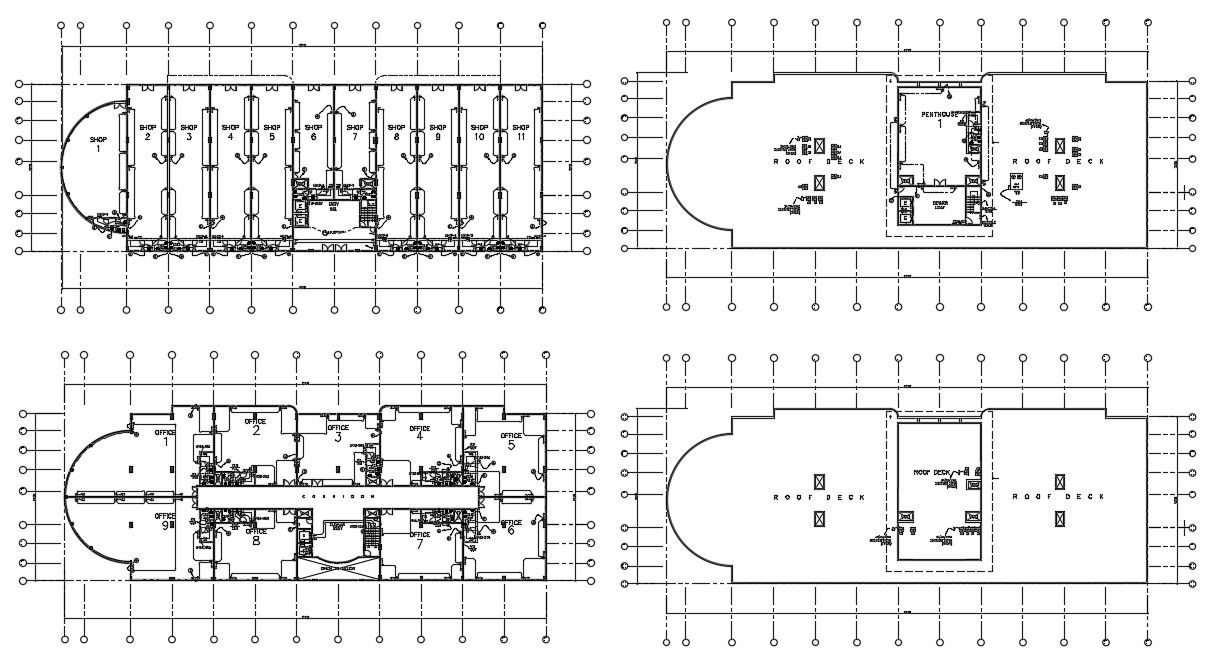
Download commercial building layout floor plan DWG file includes Shop And Office Building CAD drawing; along with roof deck plan in AutoCAD format.
File Type:
DWG
File Size:
2.8 MB
Category::
Architecture
Sub Category::
Corporate Building
type:
Gold
Uploaded by:
Komal
View Profile
Download
Add to libary
find Latest
Related
Files