School Building Plan DWG File
Description
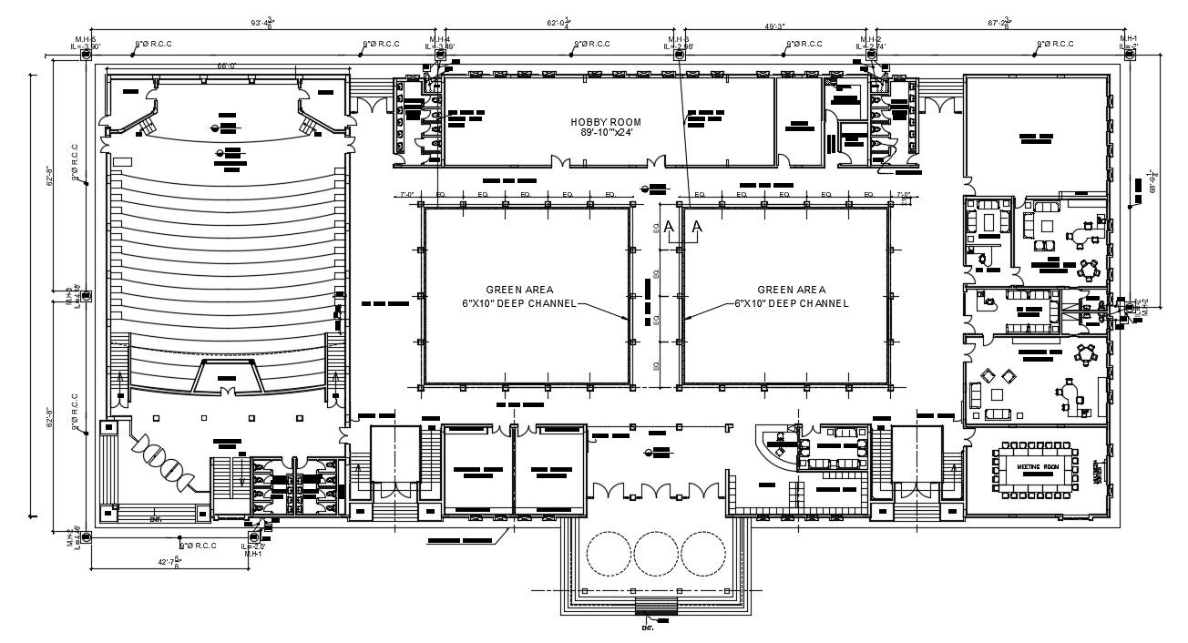
The architecture school building ground floor layout plan includes an auditorium, meeting room, bathroom, deep channel area, admin office and principle cabin with furniture arrangement. also, include all dimensions and description detail of School Building Plan DWG File
Uploaded by:

