LOGIN
HOME
CATEGORIES
UPLOAD FILE
PRICING
HOUSE PLAN
ABOUT US
CONTACT US
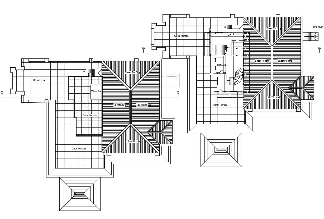
Terrace Roof Design Top View
Home
Categories
Architecture
Bungalow House Design
Terrace Roof Design Top View
Uploaded by:
Komal
View Profile
View Profile
Description
Download open terrace roof design DWG file; top view layout plan of terrace roof plan with description detail. download CAD drawing and get more detail about terrace floor design.
File Type:
DWG
File Size:
161 KB
Category::
Architecture
Sub Category::
Bungalow House Design
type:
Gold
Uploaded by:
Komal
View Profile
Download
Add to libary
find Latest
Related
Files