LOGIN
HOME
CATEGORIES
UPLOAD FILE
PRICING
HOUSE PLAN
ABOUT US
CONTACT US
Building Construction Plan DWG File
Home
Categories
Architecture
Corporate Building
Building Construction Plan DWG File
Uploaded by:
Komal
View Profile
View Profile
Description
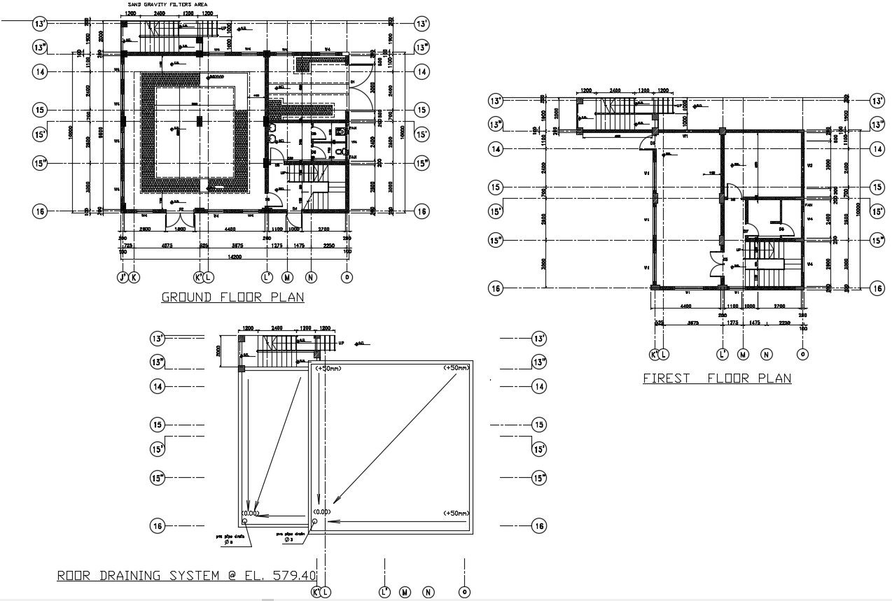
The architecture building construction floor plan with all dimensions and description detail CAD file.
File Type:
DWG
File Size:
1.4 MB
Category::
Architecture
Sub Category::
Corporate Building
type:
Gold
Uploaded by:
Komal
View Profile
Download
Add to libary
find Latest
Related
Files