Office Ground Floor Plan Building AutoCAD Drawing Download DWG File
Description
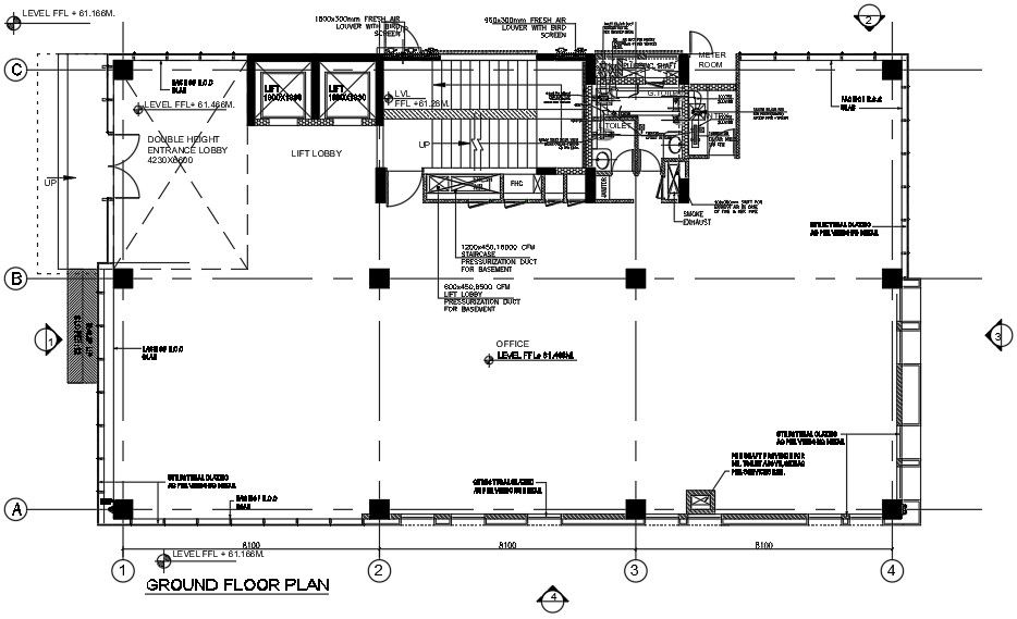
The architecture office ground floor plan AutoCAD drawing includes 2 lift lobby, double height entrance lobby, face of r.c.c slab, structural glazing as per vendor's detail, toilet exhaust air size 447x352x215h access door 600x450, and 950x300mm fresh air louver with bird screen detail in dwg file. also has column layout plan with all dimension detail. Thank you for downloading the AutoCAD drawing file and other CAD program files from our website.
Uploaded by:

