LOGIN
HOME
CATEGORIES
UPLOAD FILE
PRICING
HOUSE PLAN
ABOUT US
CONTACT US
Country house plan CAD drawing download
Home
Categories
Architecture
House Plan
Country house plan CAD drawing download
Uploaded by:
Jiya
View Profile
View Profile
Description
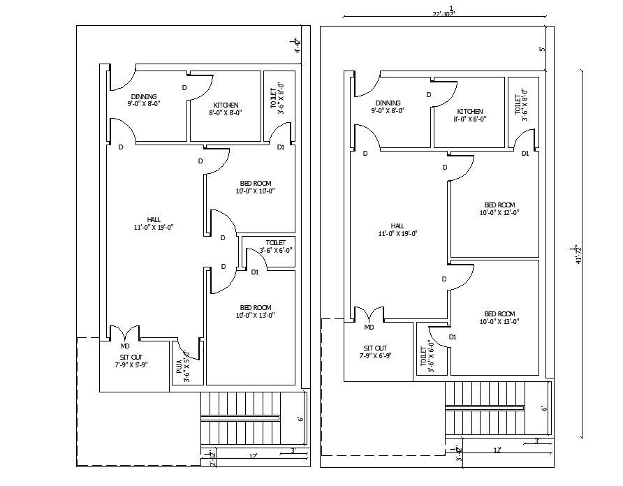
Two BHK residential house CAD plan download that includes work plan drawing details of house along with floor level details and room dimension house length width details.
File Type:
DWG
File Size:
108 KB
Category::
Architecture
Sub Category::
House Plan
type:
Gold
Uploaded by:
Jiya
View Profile
Download
Add to libary
find Latest
Related
Files