LOGIN
HOME
CATEGORIES
UPLOAD FILE
PRICING
HOUSE PLAN
ABOUT US
CONTACT US
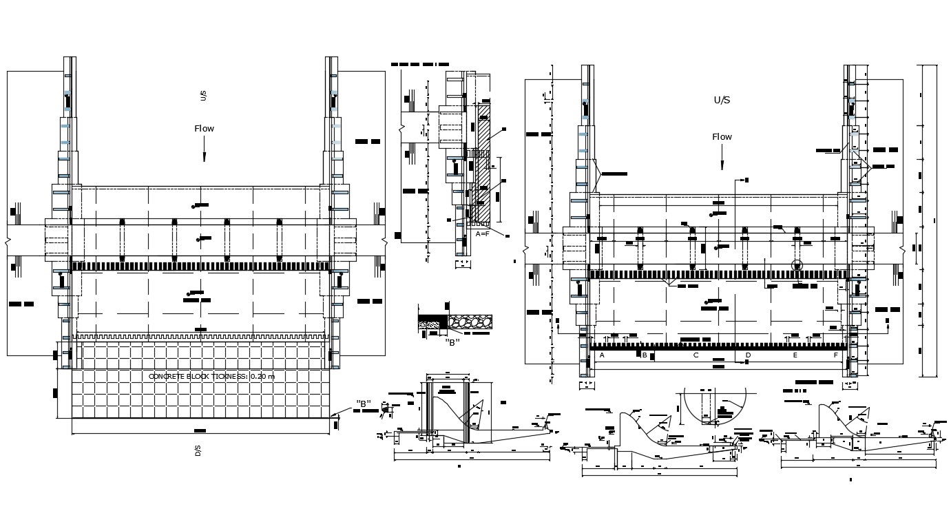
Dam Construction Plan DWG File
Home
Categories
Construction
Bridge Construction
Dam Construction Plan DWG File
Uploaded by:
Komal
View Profile
View Profile
Description
Dam Construction Plan DWG File includes retaining wall, counter forts and construction structure detail with dimension and description to better understand dam construction plan
File Type:
DWG
File Size:
1.3 MB
Category::
Construction
Sub Category::
Bridge Construction
type:
Gold
Uploaded by:
Komal
View Profile
Download
Add to libary
find Latest
Related
Files