Road Sign Board Detail
Description
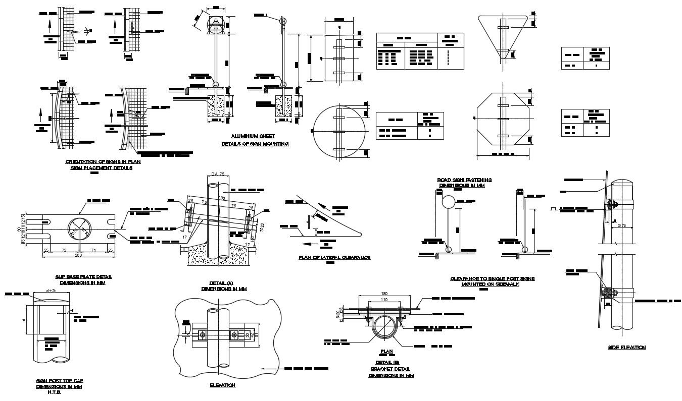
Road Sign Board Detail DWG file includes sign board size, width, and height with installation on road detail. download Road Sign Board DWG file and use it for the road construction project. CAD presentation.
File Type:
DWG
File Size:
1.5 MB
Category::
Dwg Cad Blocks
Sub Category::
Cad Logo And Symbol Block
type:
Gold
Uploaded by:

