LOGIN
HOME
CATEGORIES
UPLOAD FILE
PRICING
HOUSE PLAN
ABOUT US
CONTACT US
Concrete Stair Bridge DWG File
Home
Categories
Construction
Bridge Construction
Concrete Stair Bridge DWG File
Uploaded by:
Komal
View Profile
View Profile
Description
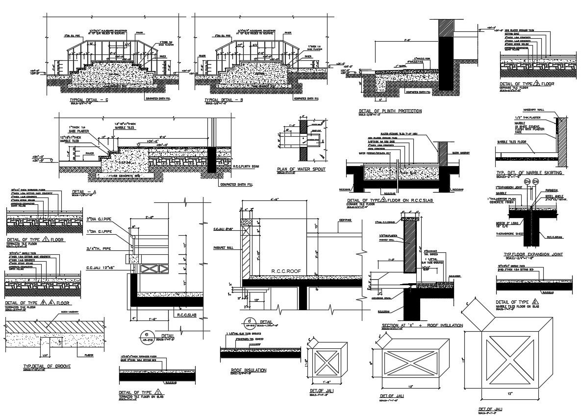
Concrete Stair Bridge DWG File includes construction detail, section plan and wall detail with all dimensions and description details in AutoCAD format.
File Type:
DWG
File Size:
1.7 MB
Category::
Construction
Sub Category::
Bridge Construction
type:
Gold
Uploaded by:
Komal
View Profile
Download
Add to libary
find Latest
Related
Files