House Section Drawing DWG File

House Section Drawing DWG File
Profile

Uploaded by:

Komal

Description
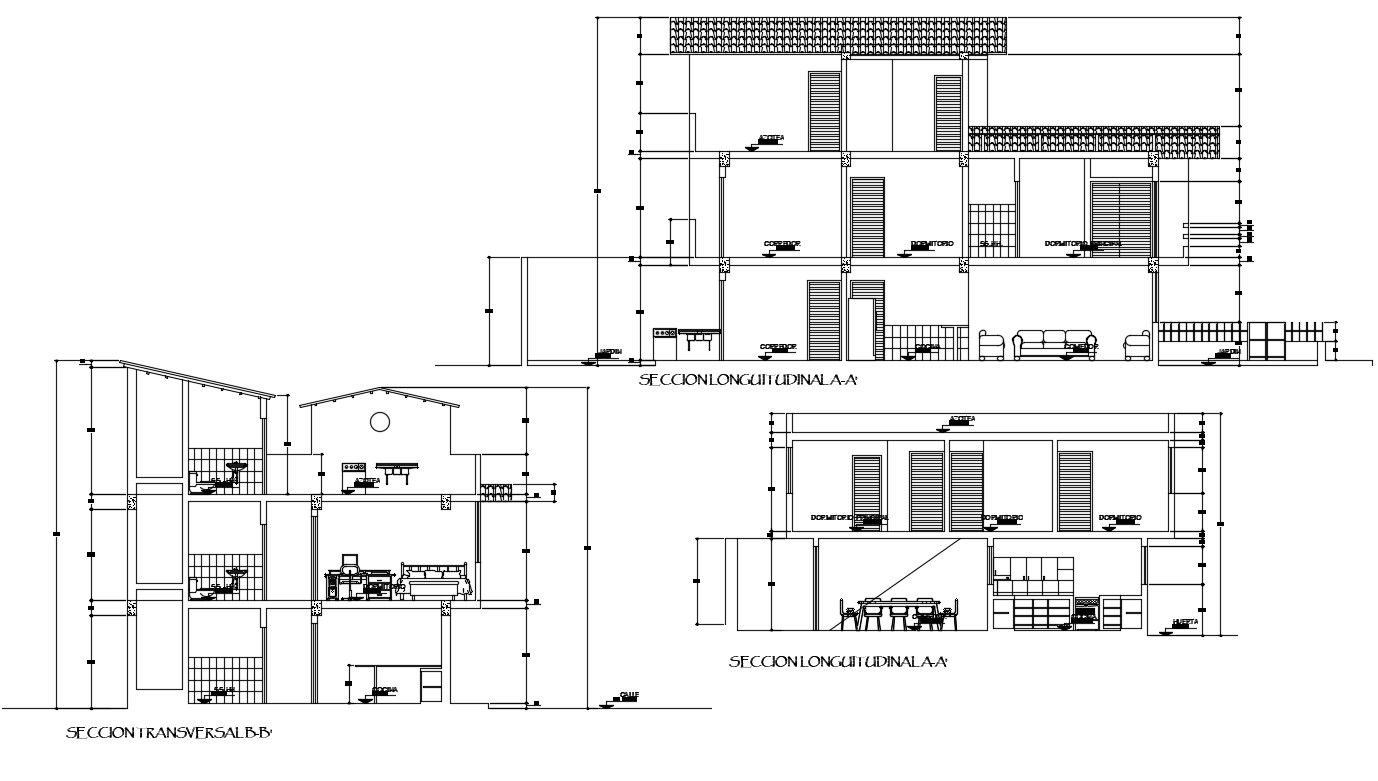
House Section Drawing DWG File; architecture section plan of residential building with dimension details. download AutoCAD file of house section plan with wall and furniture details.
Profile

Uploaded by:

Komal

find Latest

Related Files

WhatsApp Chat