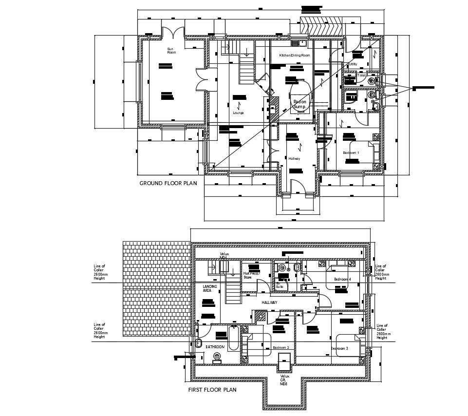
House Plans With Furniture Layout
Description
House Plans With Furniture Layout AutoCAD file; the architecture ground floor plan and first-floor plan with furniture layout plan, dimension, and description details of residence house plans. download DWG file of the house plan and use it for your CAD presentation.
Uploaded by:
