LOGIN
HOME
CATEGORIES
UPLOAD FILE
PRICING
HOUSE PLAN
ABOUT US
CONTACT US
Commercial Building Design CAD Plan
Home
Categories
Architecture
Corporate Building
Commercial Building Design CAD Plan
Uploaded by:
Jiya
View Profile
View Profile
Description
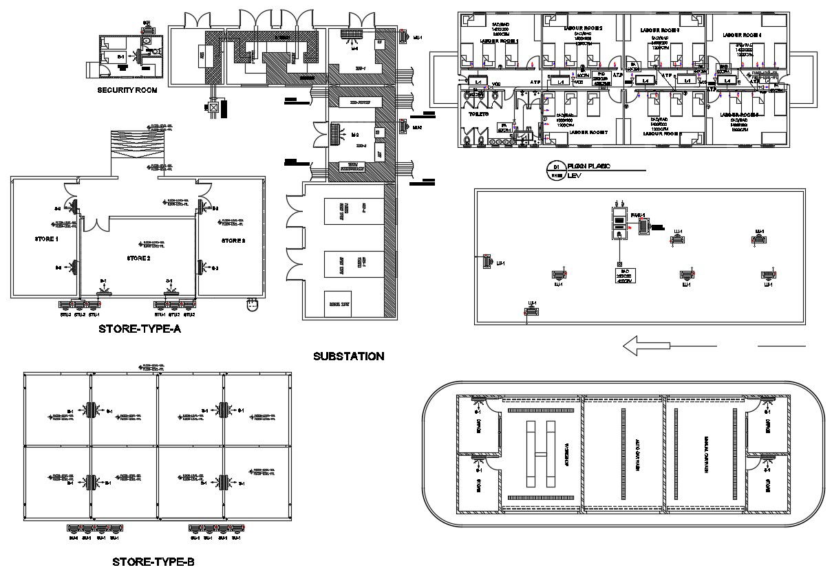
Drawing details of commerce building units that shows work plan drawing details of building along with room dimension details and ramp details also included in the drawing.
File Type:
DWG
File Size:
469 KB
Category::
Architecture
Sub Category::
Corporate Building
type:
Gold
Uploaded by:
Jiya
View Profile
Download
Add to libary
find Latest
Related
Files