LOGIN
HOME
CATEGORIES
UPLOAD FILE
PRICING
HOUSE PLAN
ABOUT US
CONTACT US
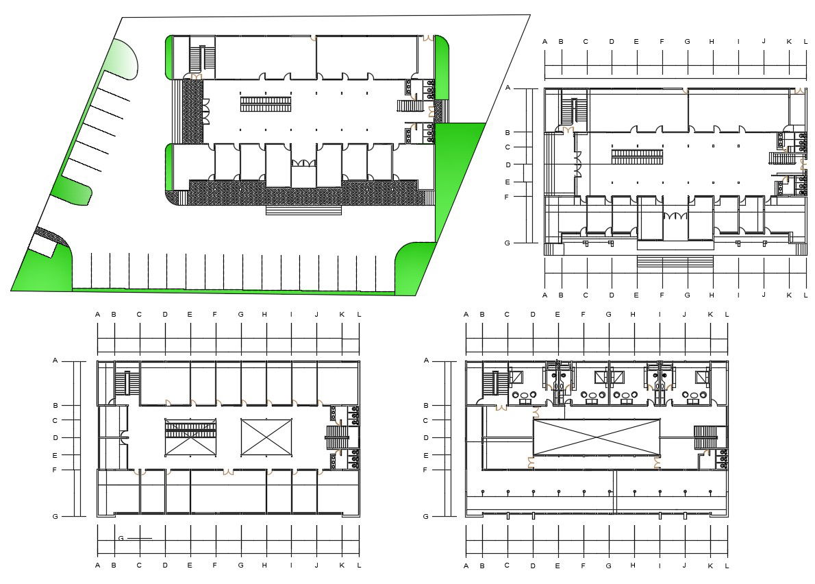
Shopping Mall Design CAD Plan
Home
Categories
Architecture
Mall & Shopping Center
Shopping Mall Design CAD Plan
Uploaded by:
Jiya
View Profile
View Profile
Description
CAD drawing plan of shopping mall building that shows work floor plan drawing details of building along with di9mension parking space and boundary wall details.
File Type:
DWG
File Size:
682 KB
Category::
Architecture
Sub Category::
Mall & Shopping Center
type:
Gold
Uploaded by:
Jiya
View Profile
Download
Add to libary
find Latest
Related
Files