LOGIN
HOME
CATEGORIES
UPLOAD FILE
PRICING
HOUSE PLAN
ABOUT US
CONTACT US
Coffee shop Design Concept CAD File
Home
Categories
Architecture
Hotels and Restaurants
Coffee shop Design Concept CAD File
Uploaded by:
Jiya
View Profile
View Profile
Description
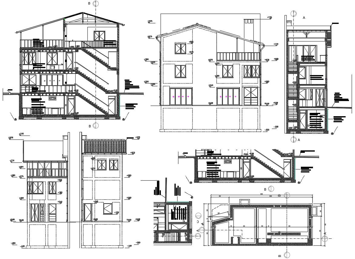
Building elevation and sectional CAD plan details in AutoCAD drawing which shows building design details along with staircase and floor leveling details.
File Type:
DWG
File Size:
770 KB
Category::
Architecture
Sub Category::
Hotels and Restaurants
type:
Gold
Uploaded by:
Jiya
View Profile
Download
Add to libary
find Latest
Related
Files