LOGIN
HOME
CATEGORIES
UPLOAD FILE
PRICING
HOUSE PLAN
ABOUT US
CONTACT US
Bridge Pier Footing DWG File
Home
Categories
Construction
Bridge Construction
Bridge Pier Footing DWG File
Uploaded by:
Komal
View Profile
View Profile
Description
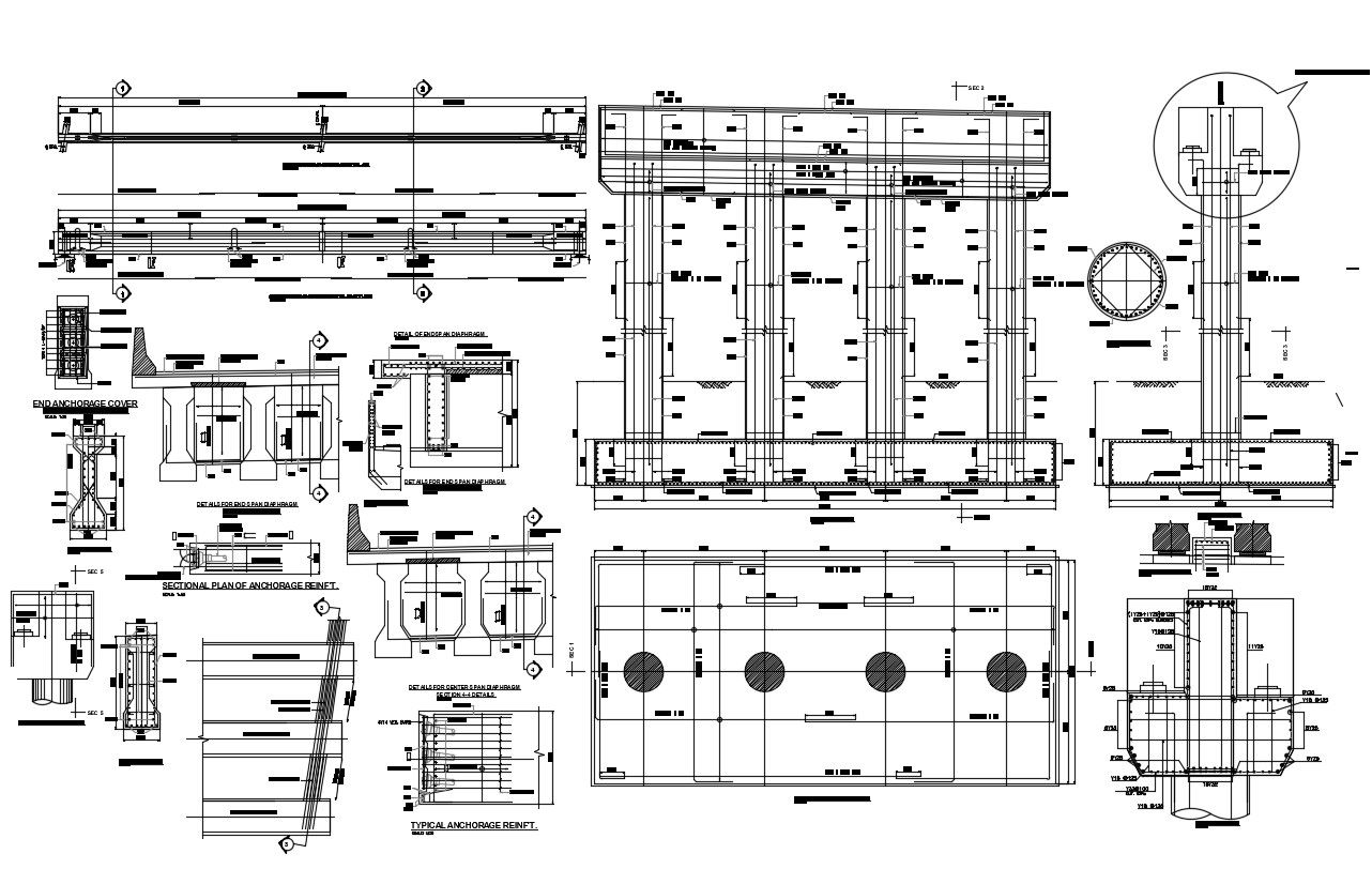
Bridge Pier Footing DWG File; Bridge pier supported on spread footing, details for center span diaphragm and girder reinforcement elevation of bridge pier footing detail.
File Type:
DWG
File Size:
474 KB
Category::
Construction
Sub Category::
Bridge Construction
type:
Gold
Uploaded by:
Komal
View Profile
Download
Add to libary
find Latest
Related
Files