LOGIN
HOME
CATEGORIES
UPLOAD FILE
PRICING
HOUSE PLAN
ABOUT US
CONTACT US
Commercial Building Architecture Plan
Home
Categories
Architecture
Corporate Building
Commercial Building Architecture Plan
Uploaded by:
Poonam
View Profile
View Profile
Description
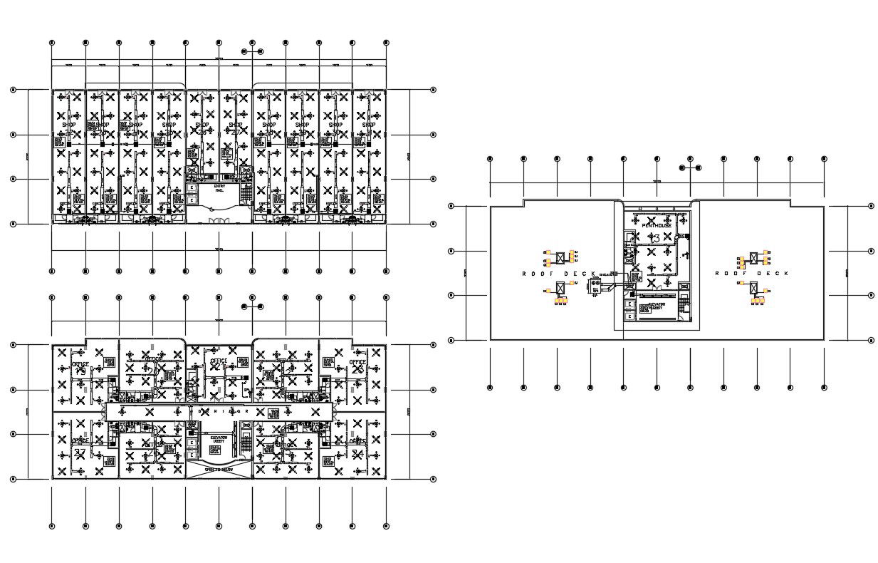
AutoCAD commercial architecture plan; includes shopping floor, office floor, and roof plan with dimension details.
File Type:
DWG
File Size:
2.3 MB
Category::
Architecture
Sub Category::
Corporate Building
type:
Gold
Uploaded by:
Poonam
View Profile
Download
Add to libary
find Latest
Related
Files