Bungalow Layout Plan CAD Drawing

Bungalow Layout Plan CAD Drawing
Profile

Uploaded by:

Jiya

Description
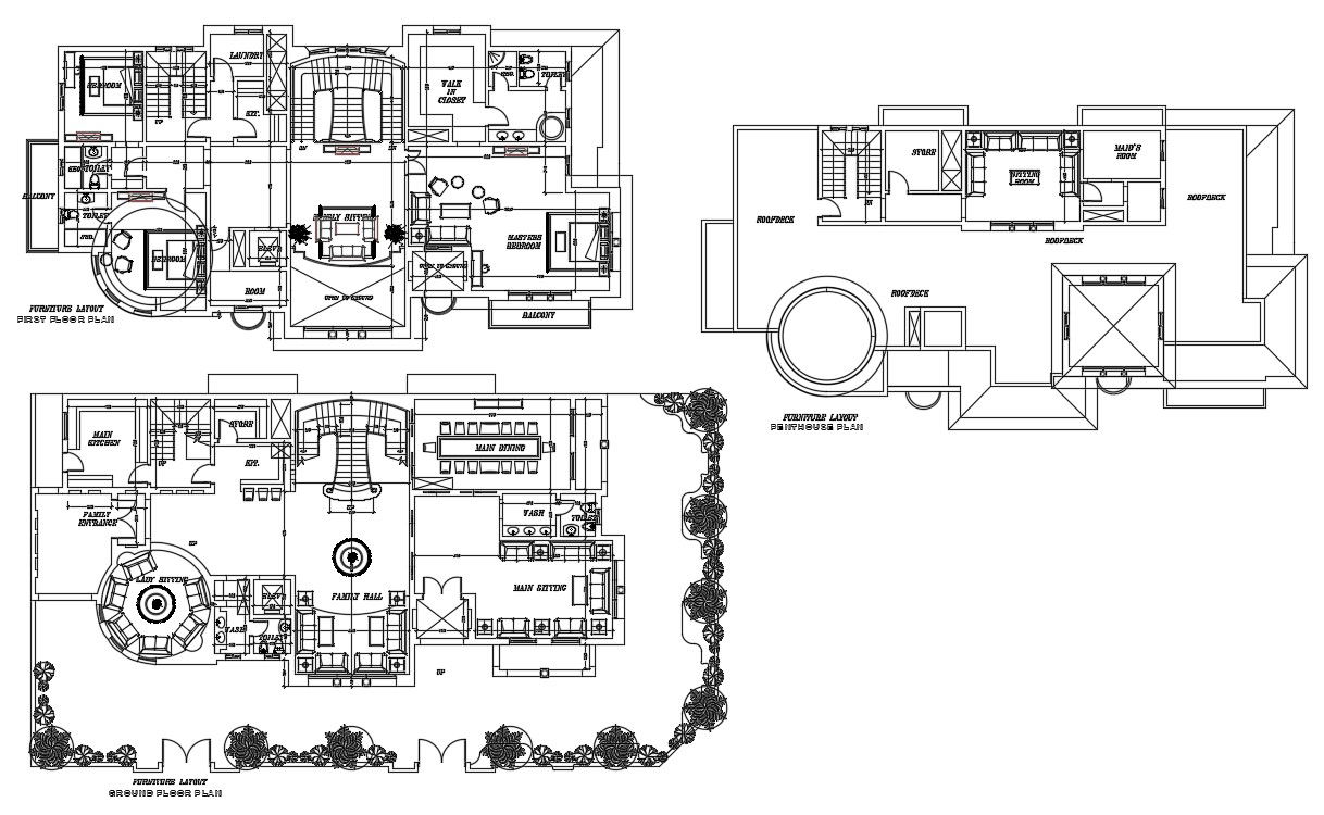
Furnished house CAD plan 2d drawing that shows work plan drawing details along with dimension and floor level; details. Furniture layout plan details in the house also included in drawing.
Profile

Uploaded by:

Jiya

find Latest

Related Files

WhatsApp Chat