LOGIN
HOME
CATEGORIES
UPLOAD FILE
PRICING
HOUSE PLAN
ABOUT US
CONTACT US
Building Plan cad file
Home
Categories
Architecture
Apartment Drawing
Building Plan cad file
Uploaded by:
Poonam
View Profile
View Profile
Description
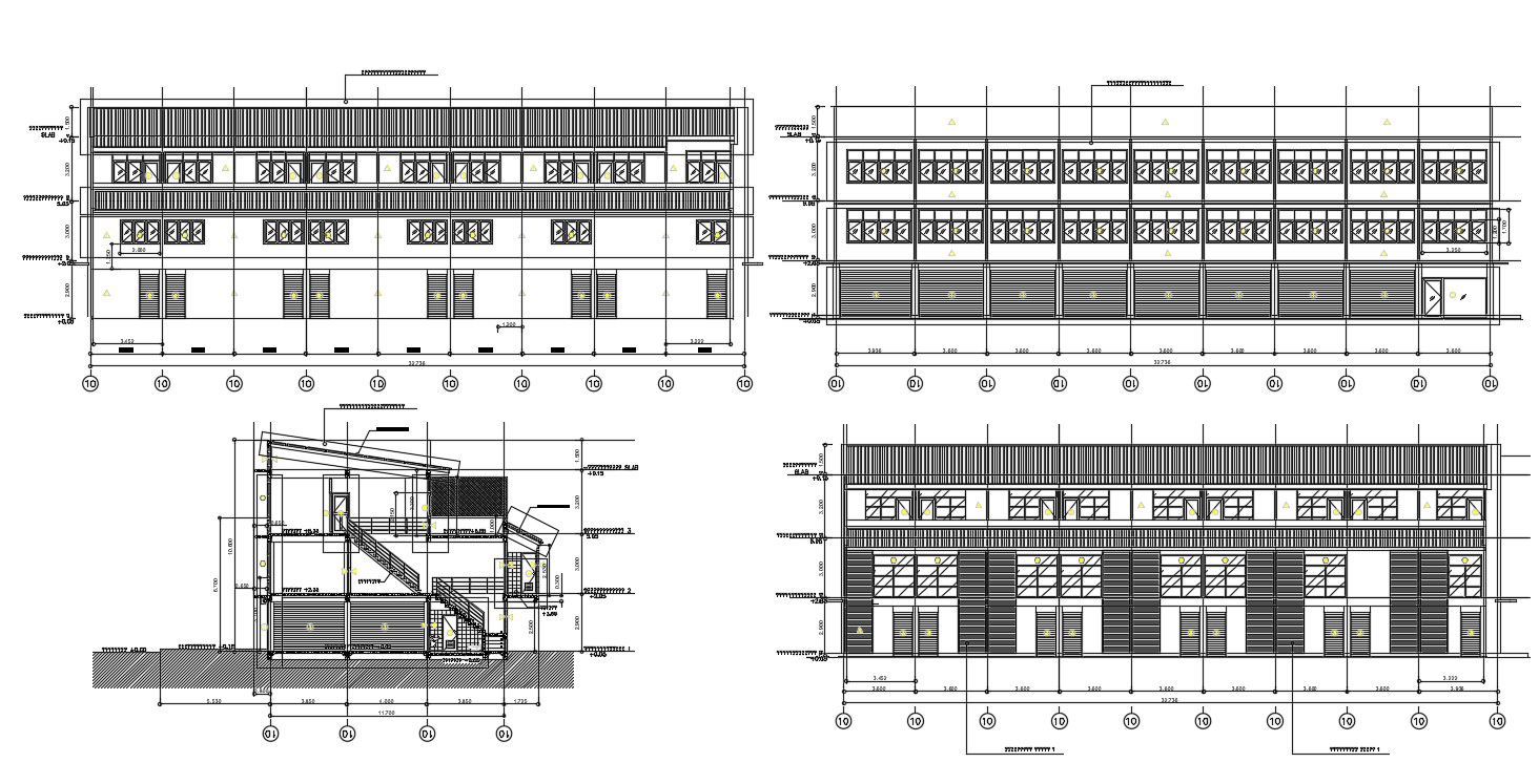
Building cad plan; includes the information of the building along with the section and dimension details.
File Type:
DWG
File Size:
389 KB
Category::
Architecture
Sub Category::
Apartment Drawing
type:
Gold
Uploaded by:
Poonam
View Profile
Download
Add to libary
find Latest
Related
Files