Auditorium Designs Plans CAD File

Auditorium Designs Plans CAD File
Profile

Uploaded by:

Jiya

Description
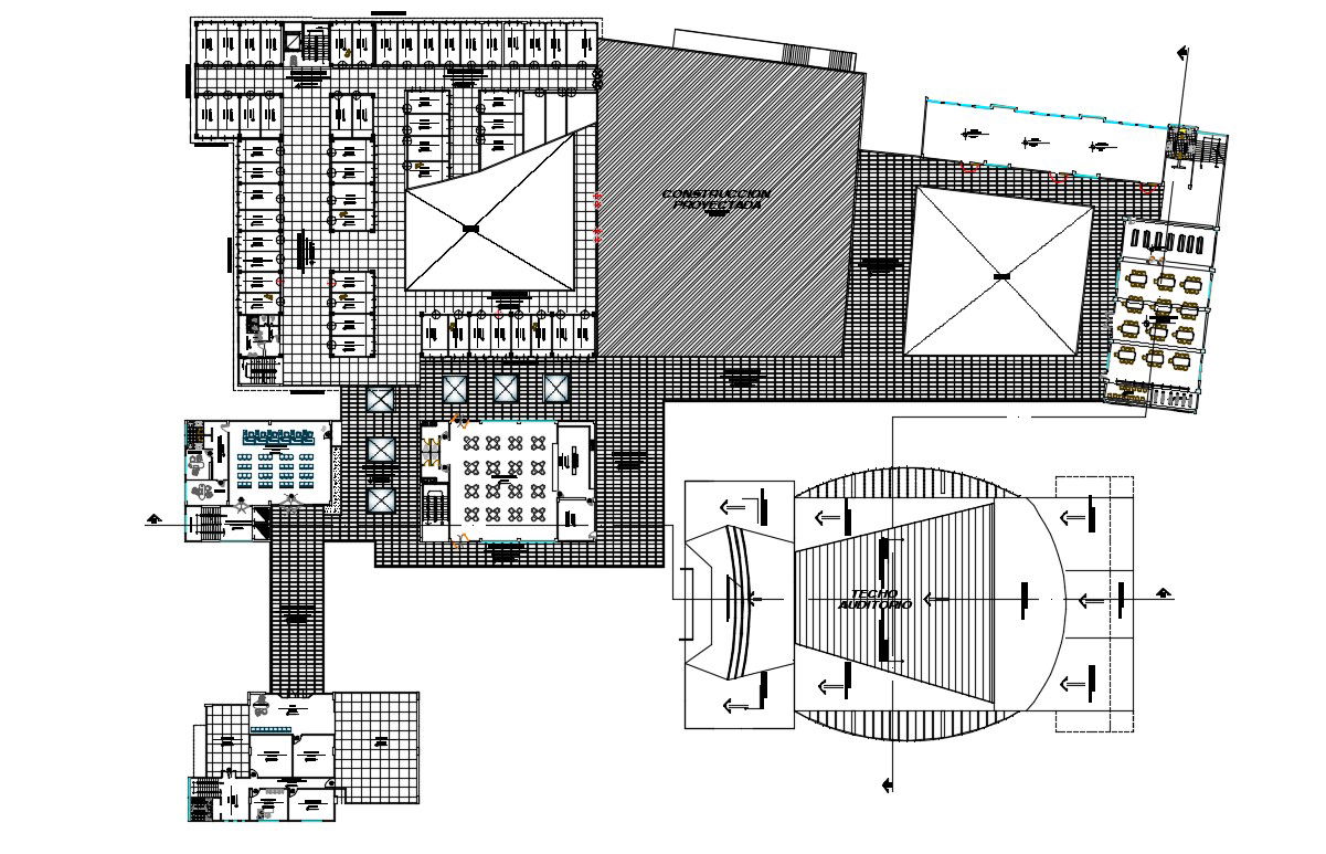
2d design layout floor plan of a commercial building which shows auditorium building design details along with section line and furniture layout details also included in the drawing.
Profile

Uploaded by:

Jiya

find Latest

Related Files