RCC Column Design

RCC Column Design
Profile

Uploaded by:

Jiya

Description
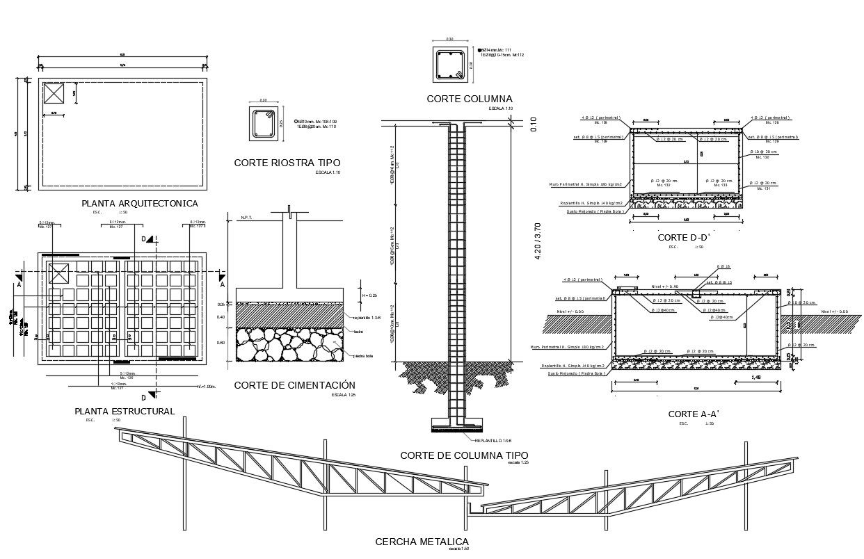
2d drawing details of foundation footing which shows reinforcement details in tension and compression zone, roof shade truss details, concrete masonry work details, and many other units details.
Profile

Uploaded by:

Jiya

find Latest

Related Files

WhatsApp Chat