Living Room Elevation Drawing
Description
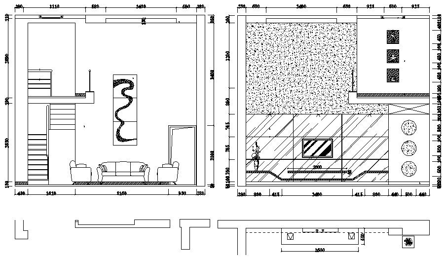
Living Room Elevation Drawing AutoCAD file; find here family living room elevation design shows TV unit with wallpaper design and sofa set with staircase design.
File Type:
DWG
File Size:
1.6 MB
Category::
Interior Design
Sub Category::
Drawing And Living Area Interior Design
type:
Gold
Uploaded by:

