LOGIN
HOME
CATEGORIES
UPLOAD FILE
PRICING
HOUSE PLAN
ABOUT US
CONTACT US
Hospital Layout Plan DWG File
Home
Categories
Architecture
Hospital Projects
Hospital Layout Plan DWG File
Uploaded by:
Komal
View Profile
View Profile
Description
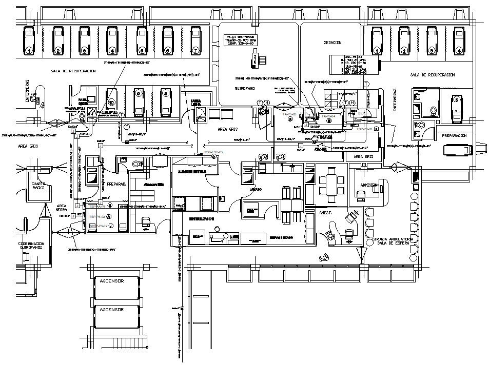
Hospital Layout Plan DWG File; 2d CAD drawing of hospital project includes general admin room, special room, reception with waiting area, and pharmacy store with furniture detail.
File Type:
DWG
File Size:
1.3 MB
Category::
Architecture
Sub Category::
Hospital Projects
type:
Gold
Uploaded by:
Komal
View Profile
Download
Add to libary
find Latest
Related
Files