LOGIN
HOME
CATEGORIES
UPLOAD FILE
PRICING
HOUSE PLAN
ABOUT US
CONTACT US
False Ceiling Electrical Wiring CAD Drawing
Home
Categories
Electrical
Light Fixtures & Fittings
False Ceiling Electrical Wiring CAD Drawing
Uploaded by:
Komal
View Profile
View Profile
Description
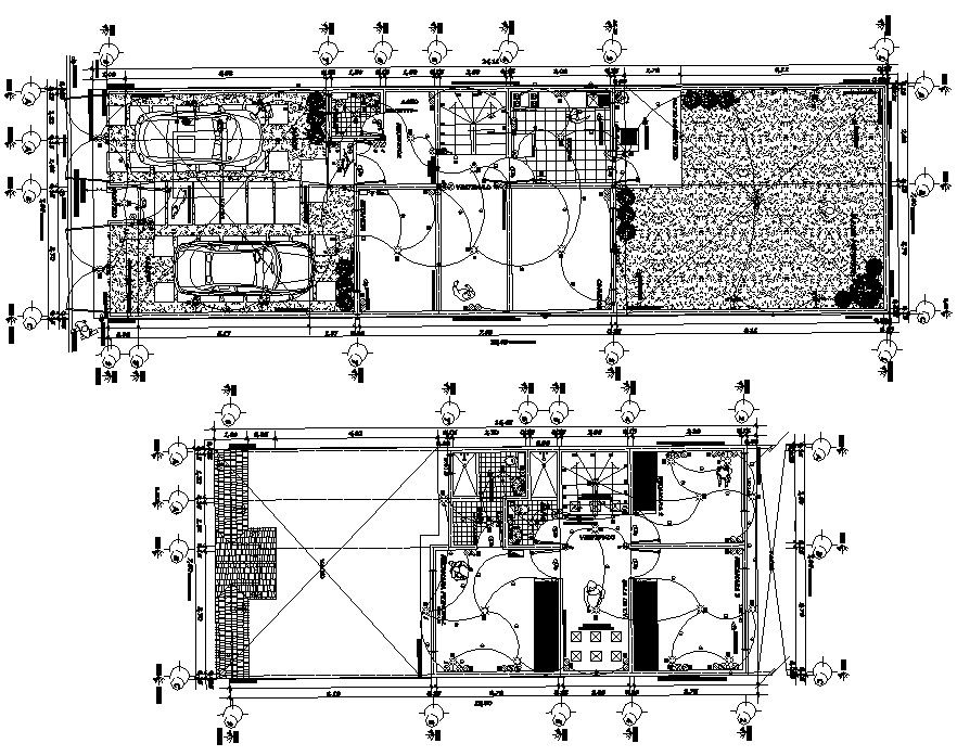
False Ceiling Electrical Wiring CAD Drawing; The ground floor and first floor electrical layout plan of house with false ceiling design.
File Type:
DWG
File Size:
5.6 MB
Category::
Electrical
Sub Category::
Light Fixtures & Fittings
type:
Gold
Uploaded by:
Komal
View Profile
Download
Add to libary
find Latest
Related
Files