Farmhouse Plan AutoCAD File

Farmhouse Plan AutoCAD File
Profile

Uploaded by:

Komal

Description
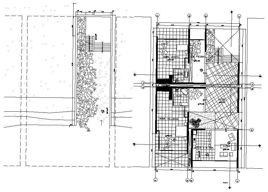
Farmhouse Plan AutoCAD File; the architecture layout plan of farmhouse plan with furniture detail and dimension detail. download DWG file of the farmhouse project and get more details about floor.
Profile

Uploaded by:

Komal

find Latest

Related Files