Public Toilet AutoCAD Drawing

Public Toilet AutoCAD Drawing
Profile

Uploaded by:

Komal

Description
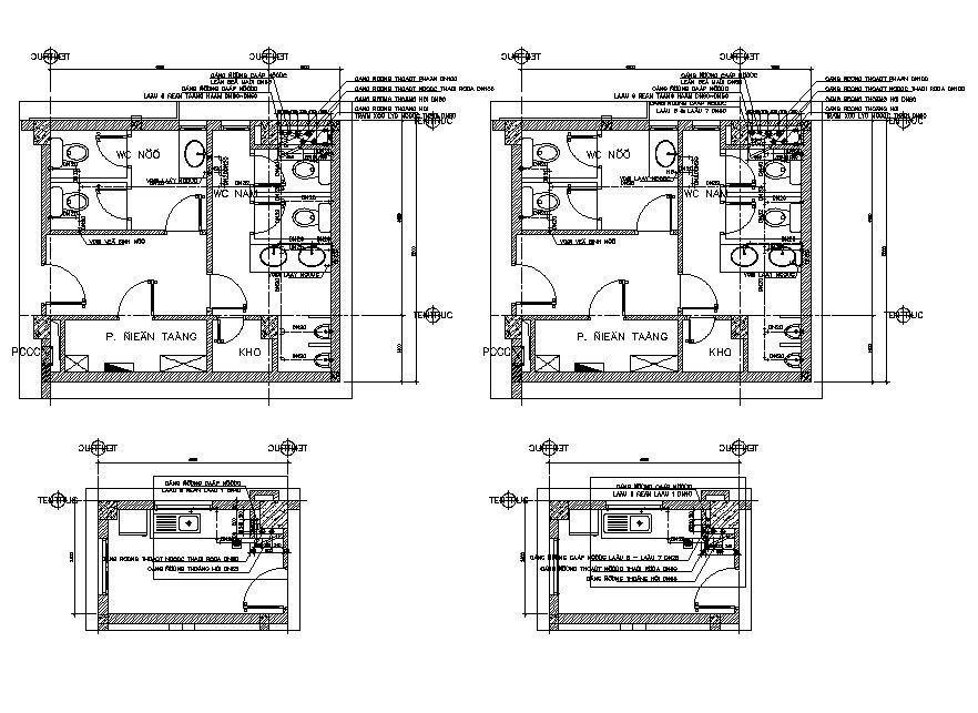
Public Toilet AutoCAD Drawing; 2d CAD drawing layout plan shows toilet tub with water closet, washbasin and shower room. download AutoCAD file of the public toilet with dimension detail.
Profile

Uploaded by:

Komal

find Latest

Related Files

WhatsApp Chat