House Layout Plan With Furniture Drawing
Description
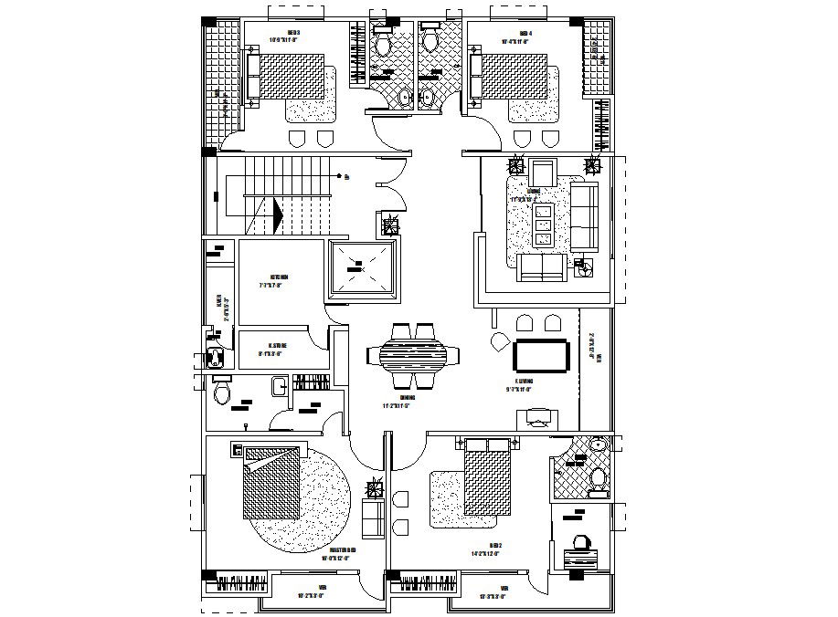
House Layout Plan With Furniture Drawing DWG File; The architecture layout plan has been drawing in AutoCAD software. 2d CAD drawing includes living room, dining area, kitchen and 4 bedrooms along with all measurement and furniture detail AutoCAD format.
Uploaded by:
