Bridge Construction Plan DWG File
Description
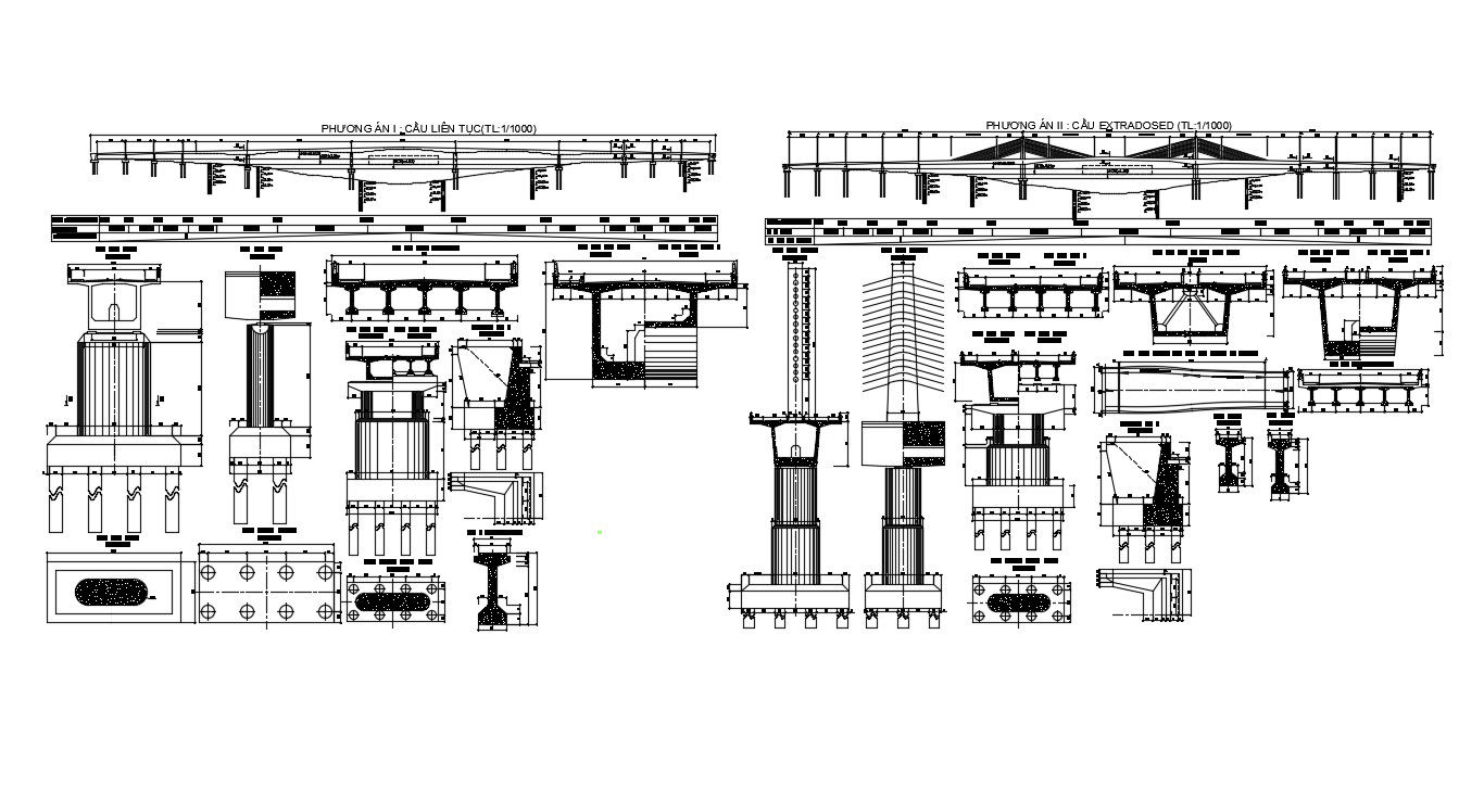
Bridge Construction Plan DWG File; 2d CAD drawing of construction bridge foundation detail and continuous a beam which is an indeterminate multi-span beam is a hinged supportable stayed Bridge. download AutoCAD of construction bridge with section and elevation view.
Uploaded by:

