Auditorium Plan AutoCAD Drawing

Auditorium Plan AutoCAD Drawing
Profile

Uploaded by:

Komal

Description
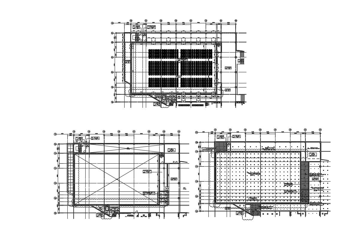
Auditorium Plan AutoCAD Drawing; auditorium project AutoCAD drawing includes floor plan with public seating arrangement. download auditorium plan DWG file and get more detail with dimension.
Profile

Uploaded by:

Komal

find Latest

Related Files

WhatsApp Chat