Modular Kitchen Design Download
Description
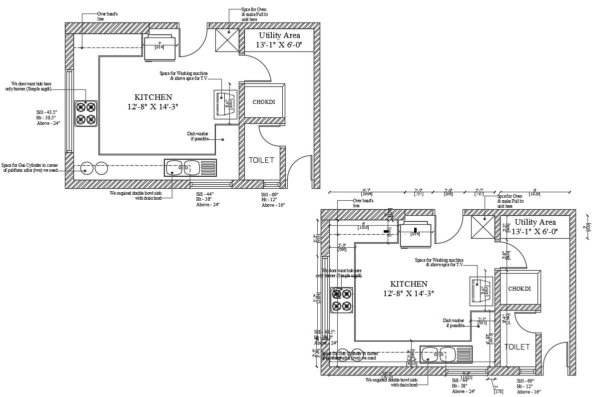
Floor plan design of kitchen which shows the kitchen design details along with kitchen furniture and automation blocks details along with kitchen stove, refrigerator blocks, kitchen sink, and many other unit details.
Uploaded by:

