3 Star Hotel Project CAD Drawing
Description
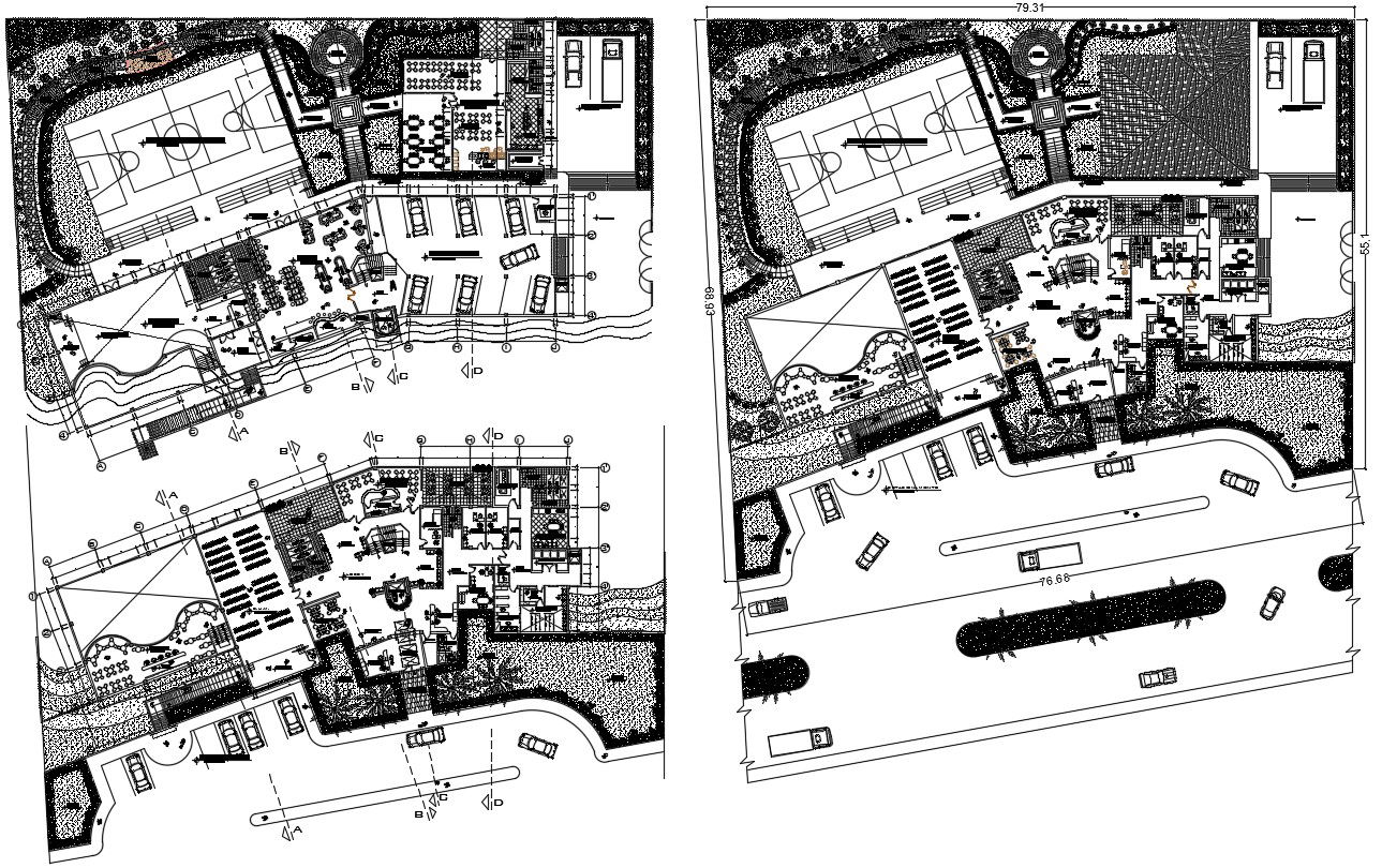
3 Star Hotel Project CAD Drawing; the architecture hotel project AutoCAD drawing includes cafeteria, casino, sports ground, offices, auditorium, car parking, and landscaping design. download architecture CAD drawing of hotel project with description detail.
Uploaded by:

