LOGIN
HOME
CATEGORIES
UPLOAD FILE
PRICING
HOUSE PLAN
ABOUT US
CONTACT US
Septic Tank Design CAD File download
Home
Categories
Construction
Plumbing Drawing
Septic Tank Design CAD File download
Uploaded by:
Jiya
View Profile
View Profile
Description
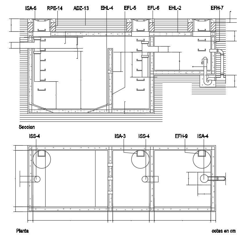
Download construction details of septic tank which shows the reinforcement detailing in tank along with concrete masonry design details and tank wall details.
File Type:
DWG
File Size:
51 KB
Category::
Construction
Sub Category::
Plumbing Drawing
type:
Gold
Uploaded by:
Jiya
View Profile
Download
Add to libary
find Latest
Related
Files