Auditorium Hall CAD Drawing

Auditorium Hall CAD Drawing
Profile

Uploaded by:

Komal

Description
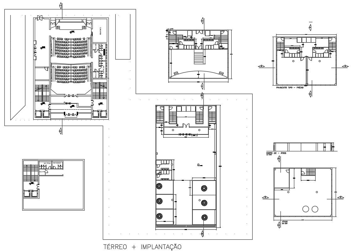
Auditorium Hall CAD Drawing; The auditorium hall CAD drawing top view layout plan includes stage and seating arrangement detail. download DWG file and get more detail about the auditorium project.
Profile

Uploaded by:

Komal

find Latest

Related Files