Corporate Building Floor Plan DWG File
Description
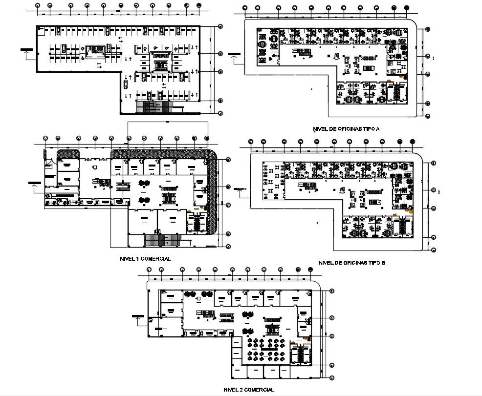
Corporate Building Floor Plan DWG File; 2D CAD drawing of corporate building office floor plan includes a cafeteria, workstation, office cabins and basement parking plan with a landscaping design in AutoCAD format. download office floor plan AutoCAD file and get more detailing about building construction plans.
Uploaded by:

