Medical Clinic Project AutoCAD File
Description
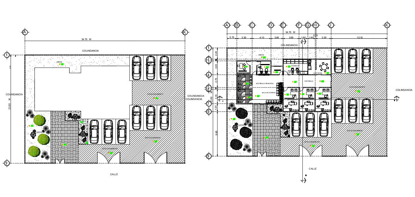
Medical Clinic Project AutoCAD File; the architecture clinic project CAD drawing includes consult room, waiting area, reception area and toilet with all furniture detail. download AutoCAD file of medical clinic project with construction built-up area and parking area.
Uploaded by:

