Finance Building Project DWG File
Description
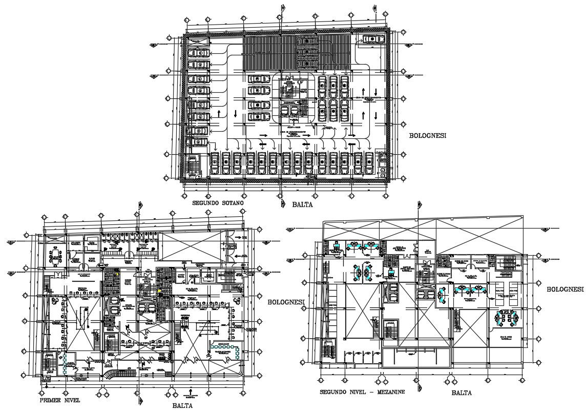
Finance Building Project DWG File; 2d CAD drawing of finance building project includes ground floor plan, first-floor plan and basement parking plan with all furniture detail. download AutoCAD file of the office building project and collect the CAD drawing idea for new projects.
Uploaded by:

