Corporate Building Layout Plan DWG
Description
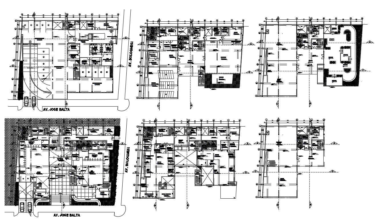
Corporate Building Layout Plan DWG File; the architecture corporate building layout plan includes building structure detail and construction floor plan with dimension detail. download AutoCAD file of the corporate building project and use it for reference CAD drawing.
Uploaded by:

