Office Building Architecture Plan DWG File
Description
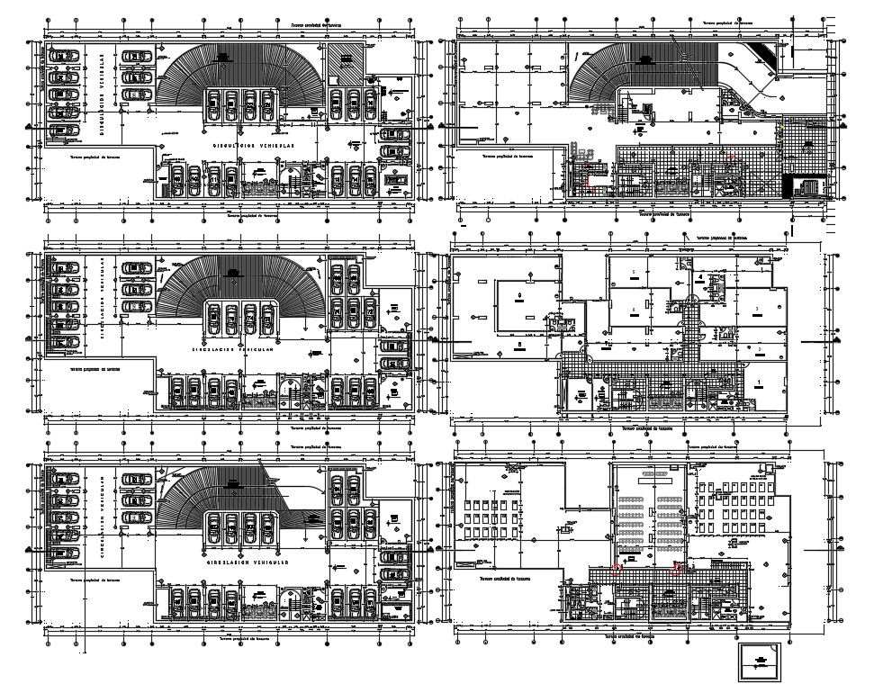
Office Building Architecture Plan DWG File; 2d CAD drawing of architecture office and commercial building project includes basement parking floor plan and office workstation floor plan with furniture detail and dimension detail. download AutoCAD file of the office building floor plan.
Uploaded by:

