LOGIN
HOME
CATEGORIES
UPLOAD FILE
PRICING
HOUSE PLAN
ABOUT US
CONTACT US
Kitchen Floor Plans
Home
Categories
Interior Design
Kitchen Interiors
Kitchen Floor Plans
Uploaded by:
akansha
ghatge
View Profile
View Profile
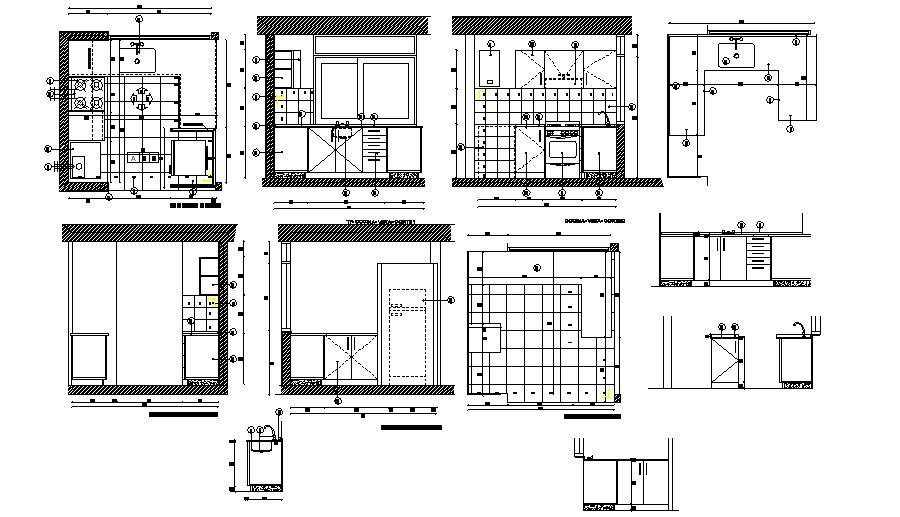
Description
Kitchen design plan Download CAD file which shows kitchen furniture and automation blocks details along with kitchen elevation detailed drawing.
File Type:
DWG
File Size:
239 KB
Category::
Interior Design
Sub Category::
Kitchen Interiors
type:
Gold
Uploaded by:
akansha
ghatge
View Profile
Download
Add to libary
find Latest
Related
Files