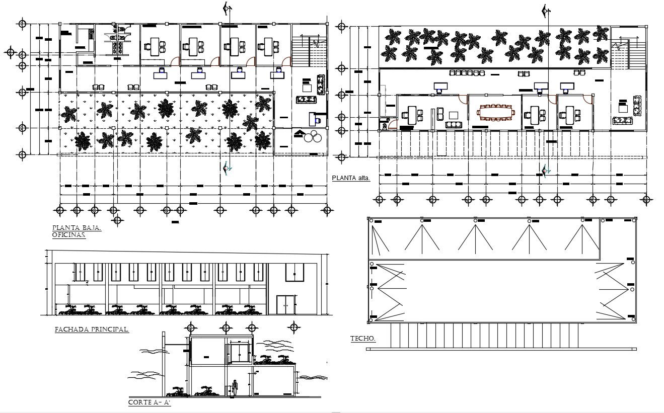
2 Storey Office Building Floor Plan
Description
2 Storey Office Building Floor Plan AutoCAD File; find here office building floor plan with furniture detail, section view and elevation design with dimensions and landscaping design. download office building floor plan DWG file and use it for reference CAD drawing.
Uploaded by:
